In any concrete high rise building, the shear walls are a major consideration in the interior planning. For this project, we became fascinated with how to express the shear walls on the building facades and use them to create strong tectonics f…

In any concrete high rise building, the shear walls are a major consideration in the interior planning. For this project, we became fascinated with how to express the shear walls on the building facades and use them to create strong tectonics for otherwise glassy towers.

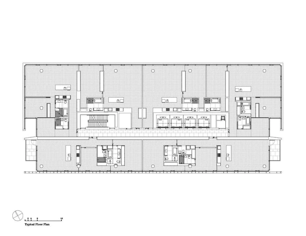
In residential high rise design, the building's floor plans are always the primary consideration; all architectural elements must bend to the economics that unit counts and efficiency require. We managed to plan efficient, spacious units, maintain a…

In residential high rise design, the building's floor plans are always the primary consideration; all architectural elements must bend to the economics that unit counts and efficiency require. We managed to plan efficient, spacious units, maintain a clear and honest structural language, and a free and open plan.

We also were interested in using balconies and sun shade canopies as form-defining elements. The recesses created by the balconies led to a conversation about differentiating the treatment of the facades between the inner and outer forms and overlap…

We also were interested in using balconies and sun shade canopies as form-defining elements. The recesses created by the balconies led to a conversation about differentiating the treatment of the facades between the inner and outer forms and overlapping the facades at the thresholds to create the sense of a box wrapped in a sleeve.

The need for solar control and ways of responding to this need specific to each orientation was also considered as a way of breaking up the massing of the buildings and emphasizing discreet portions of the façade as architectural elements.

The need for solar control and ways of responding to this need specific to each orientation was also considered as a way of breaking up the massing of the buildings and emphasizing discreet portions of the façade as architectural elements.

For the buildings fronting on First Avenue, their urbanism was an important consideration - we studied various approaches to breaking the form of the towers at the street level without losing the strength of the form and sense of mass of the tower a…

For the buildings fronting on First Avenue, their urbanism was an important consideration - we studied various approaches to breaking the form of the towers at the street level without losing the strength of the form and sense of mass of the tower above.

3d models were used throughout the design process as a way of testing principals as they were developed. By keeping materials abstract and white, the sculptural form of the buildings could be studied as the primary concern, leaving material def…

3d models were used throughout the design process as a way of testing principals as they were developed. By keeping materials abstract and white, the sculptural form of the buildings could be studied as the primary concern, leaving material definitions to be discovered at a later time.

East River Master Plan

New York, NY

This project was a 5 million sf vision for the redevelopment of three former Con Edison power plant sites on the East River between 35th and 41st streets. The project includes 4 residential towers, a community facility, and 3 acres of open public park space.

Principal in Charge: Richard Meier

Project Managers/ Lead Designers: Sean O'Brien / Bryce de Reynier + Matt Krajewski

Senior Designer: Kevin Hamlett

Architectural Designers: Marcus Carter, Joshua ColemanGrace Liao, Quang Truong, Ming Tung

My Role: Sr. Designer transitioned to Co-Project Manager (2005-2008)